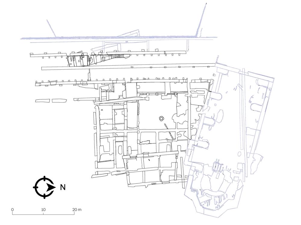
Infraestructura del convento
La comunidad de frailes dominicosque se constituyó en Logroño en el año 1443 tomó posesión de las dependencias anejas a la iglesia románica de Santa María de Valcuerna cuyo nombre acabará mudando en Valbuena dos siglos después. El templo y las instalaciones conventuales que componen las principales protagonistas del actual área arqueológica sustituyeron a las antiguas dotaciones medievales en los primeros años del siglo XVI. Este proyecto fue financiado por el capitán Diego Hurtado de Luna, señor de Cornago, quien invirtió parte de su patrimonio en el patronazgo de esta institución con el objetivo de favorecer su promoción social en el seno de aquel Logroño que se constituía como uno de los pujantes escenarios urbanos castellanos que comenzaban a asomarse a los modos económicos y políticos del 1500.
Como tantas otras órdenes mendicantes, los dominicos logroñeses se asentaron en la periferia de las ciudades, rodeados de sus huertos y propiedades, ajenos a la vida urbana aunque, en este caso, organizados alrededor de unas normas de clausura no tan estrictas. Desde el relativo aislamiento de su convento se dedicaron a la asistencia de los colectivos más desfavorecidos y a la divulgación de su tarea doctrinal, desempeñada a través de la liturgia y la predicación de los valores de la ortodoxia católica, especialmente activa tras el éxito y la difusión de la reforma luterana. Es por esta razón que no podemos considerar casualidad que el Tribunal y las cárceles de la Inquisición se instalaran en los terrenos inmediatos al convento de Valbuena.
Las instalaciones conventuales reproducen una tipología canónica que podemos ver mil veces repetida, protegidas de la inclemencia por la imponente presencia de la iglesia y articuladas alrededor del patio abierto del claustro. En planta baja, los principales espacios identificados o intuidos se corresponden con la portería, sala capitular, torre, refectorio, cilla y bodega.
La expropiación de sus bienes raíces y la definitiva disolución de la comunidad dominica de Valbuena se produjeron en el año 1833, en el contexto de la Primera Guerra Carlista. Como tantas otras instituciones religiosas, sus instalaciones fueron reaprovechadas por las crecientes necesidades de la administración militar de un siglo en extremo convulso.




